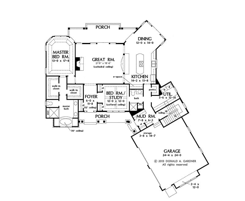
This home has the feel of being in the woods or the mountains. A relaxing getaway from the hustle of the daily routine. The over-sized great room adjoins a large kitchen and spacious dining/nook area. There is no wasted space in this plan making it super-efficient for a modest sized home. The flexible bonus room can add bedrooms and flex space.
| Style | Country |
| Bedrooms | 3-4 |
| Bathrooms | 3 |
| Stories | 2 |
| Garage Size | Oversized 2 car |
| Living Sq. Ft.* | 2,611 (w/bonus) |
| Total Sq. Ft. | 3,679 |
| Plan Number | #929-2 |
| Width/Depth | 74'6" x 77'10" |

Plan Groups
For more plans, choose from any site including: Homeplans.com, Eplans.com, Saterdesign.com, Dongardner.com, or Architecturaldesigns.com. Modifications can be made to any plan. *Square footages to this plan may have been adjusted for exterior block wall construction.