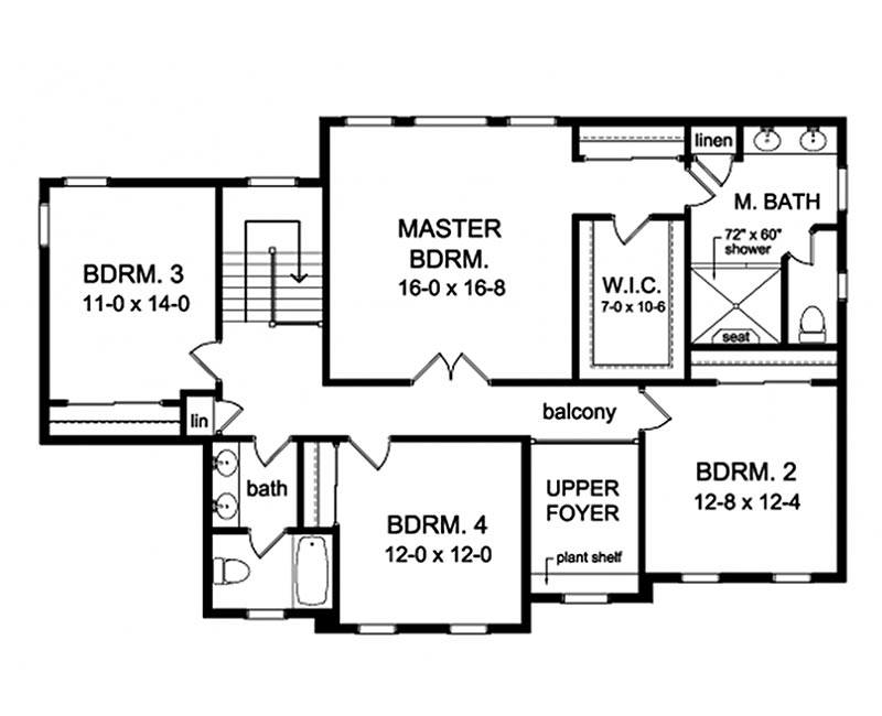
The elegant exterior of this Colonial Style home will bring a smile everytime you pull into the drive. The interior has a great room plan with no formal living area. The master is located upstairs with a great view to the rear of the home. The home has a galley kitchen with an oversized nook.
| Style | Colonial |
| Bedrooms | 4 |
| Bathrooms | 2.5 |
| Stories | 2 |
| Garage Size | 3 |
| Living Sq. Ft.* | 3,081 |
| Total Sq. Ft. | 4,194 |
| Plan | HWEPL77541 |
| Width/Depth | 62'8" x 63' |

Plan Groups
For more plans, choose from any site including: Homeplans.com, Eplans.com, Saterdesign.com, Dongardner.com, or Architecturaldesigns.com. Modifications can be made to any plan. *Square footages to this plan may have been adjusted for exterior block wall construction.